Principal & Interest | $ | |
Property Tax | $ | |
Home Insurance | $ | |
Mortgage Insurance | $ | |
HOA Dues | $ | |
Estimated Monthly Payment | $ |

1/3 B

2/3

3/3
Southampton at Blythe Mill Townhomes

1/3 B
Southampton: B

2/3 Blythe Mill Townhomes Lots 114-110
Southampton:

3/3 Blythe Mill Townhomes Lots 43-48
Southampton:



- Community
- Blythe Mill Townhomes
-
Approximately
2062 sq ft
-
Bedrooms
3
-
Full-Baths
2
-
Half-Baths
1
-
Stories
2
-
Garage
1.5
Helpful Links
Explore Other Communities Where The Southampton Plan is Built
More About the Southampton
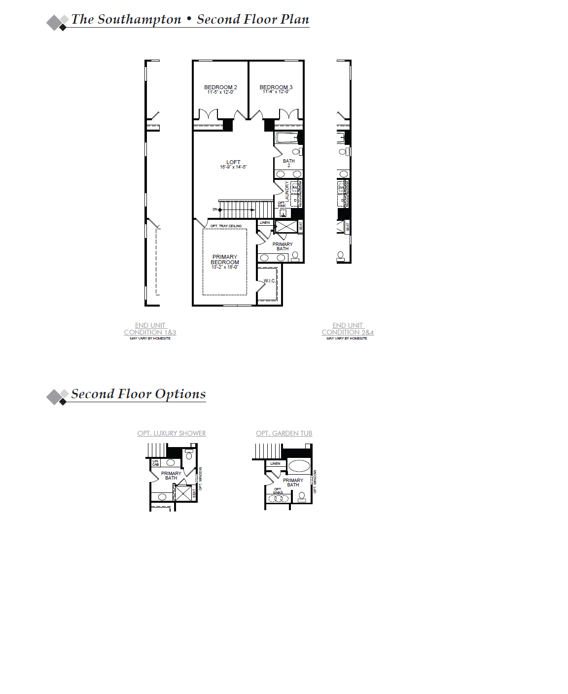
The Southampton is a three-bedroom, two-and-a-half-bath, end-unit townhome with an oversized, one-car attached garage, kitchen, island and pantry, and spacious family room. The second floor features all three bedrooms, including the primary bedroom with a tiled shower in the primary bath, two additional bedrooms, a laundry room, and a loft.
Unique Features
- End-unit townhome
- Oversized one-car garage
- Loft
- Upstairs laundry room
- Tray ceiling in the foyer and primary bedroom
- Kitchen with island and pantry
Homes with Southampton Floorplan






































1/37

2/37

3/37

4/37

5/37

6/37

7/37

8/37

9/37

10/37

11/37

12/37

13/37

14/37

15/37

16/37

17/37

18/37

19/37

20/37

21/37

22/37

23/37

24/37

25/37

26/37

27/37

28/37

29/37

30/37

31/37

32/37

33/37

34/37

35/37

36/37

37/37





































Eastwood Homes continuously strives to improve our product; therefore, we reserve the right to change or discontinue architectural details and designs and interior colors and finishes without notice. Our brochures and images are for illustration only, are not drawn to scale, and may include optional features that vary by community. Room dimensions are approximate. Please see contract for additional details. Pricing may vary by county. See New Home Specialist for details.
Southampton Floor Plan


About the neighborhood
Welcome to Blythe Mill Townhomes, a brand-new Eastwood Homes community located in Waxhaw, NC! Discover your perfect home in Waxhaw, North Carolina, where convenience and charm meet. This new townhome community is ideally located within close proximity of historic downtown Waxhaw, offering pedestrian-friendly access to local shops, dining, and entertainment. Enjoy award-winning floor plans, maintenance-free living, and the benefit of living in a tax-friendly district. Residents will appreciate the top-rated Union County Schools, while enjoying the serene beauty of this quaint community. Experience the best of suburban living just outside of Charlotte in Waxhaw.
Notable Highlights of the Area
- Waxhaw Elementary School
- Parkwood Middle School
- Parkwood High School
- Waxhaw Tap House
- Mary O'Neill's Irish Pub
- Maxwell's Tavern
- Crossroads Coffee House
- Old Hickory Shopping Center
- Museum of the Waxhaws
- David G. Barnes Children's Park
- The Alphabet Museum at JAARS
Explore the Area
Want to learn more?
Request More Information
By providing your email and telephone number, you hereby consent to receiving phone, text, and email communications from or on behalf of Eastwood Homes. You may opt out at any time by responding with the word STOP.
Have questions about this floorplan?
Speak With Our Specialists
Kristina, Kyle, Sarah, Tara, Caity, and Leslie
Charlotte Internet Team
4.3
(231)
Nate was awesome! Very informative and answered every question. Jake was a pleasure to work with and was very responsive and on top of our final requests. Everyone was super friendly and knowledgeable! The quality and selection of homes is outstanding.
- Gabriel
You may also like these floorplans...
Mortgage Calculator
Get Directions
Would you like us to text you the directions?
Continue to Google Maps
Open in Google MapsThank you!
We have sent directions to your phone