Arlington

  • Starting at

    2,205 sq ft

  • Bedrooms

    3 - 4

  • Full-Baths

    2

  • Half-Baths

    1

  • Stories

    2

  • Garage

    2

Select County to Build on Your Land

This Arlington Floor Plan is currently only being offered to build on your lot in our Raleigh, Charlotte, Greensboro Area, Charleston, and Greenville divisions.
A Special Offer is Available in Some Markets
Special
Fall into Savings!

Discover the Arlington and Build on Your Land in Your County

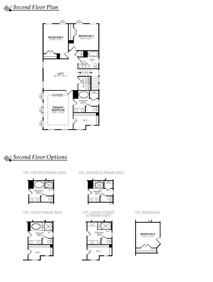
The Arlington is a charming, two-story, three-bedroom, two-and-a-half-bath home with a formal dining room, open family room, kitchen with island, and pantry. The second floor features the primary bedroom with a large walk-in closet, an upstairs loft, two additional bedrooms, and a laundry room.

Options to personalize this home include a study with French doors, sunroom, covered or screen porch, optional fourth bedroom, and several primary bath layouts. 

Need Land First?

Eastwood Homes is ready to put our 45+ years of expertise in home building to work for you - on your own property. Need land first? Explore land for sale.

Build On Your Lot

Build On Your Lot

Getting Started

We are here to help get you moving toward finding your new home! Use our website, internet team, and social media accounts as a resource to choose your community and pick your favorite floorplans before visiting.

Unique Features

  • Three bedrooms and two-and-a-half baths
  • Formal dining room
  • Upstairs loft
  • Optional study 
  • Optional covered porch or screen porch
  • Optional fourth bedroom

Foundation Options

Slab

For flatter lots, and to keep the home closer to ground level.

Crawlspace

Semi-open crawlspaces for utility storage and easier access for repairs

Eastwood Homes continuously strives to improve our product; therefore, we reserve the right to change or discontinue architectural details and designs and interior colors and finishes without notice. Our brochures and images are for illustration only, are not drawn to scale, and may include optional features that vary by community. Room dimensions are approximate. Please see contract for additional details. Pricing may vary by county. See New Home Specialist for details.

Step Inside the Arlington

Step into the Arlington with our virtual tour and image gallery. Explore the house through a captivating virtual tour or browse through stunning photos that capture its charm. Whether you're interested in the living spaces or bedrooms, our features provide an engaging look into the Arlington's appeal.
Virtual Tour

Arlington Floor Plan

Download
Arlington First Floor Image
Arlington Second Floor Image

Want to learn more?

Request More Information

By providing your email and telephone number, you hereby consent to receiving phone, text, and email communications from or on behalf of Eastwood Homes. You may opt out at any time by responding with the word STOP.

Have questions about this build on your land floorplan?

Speak With Our Specialists

Kristina, Kyle, Sarah, Tara, Caity, and Leslie

BOYL Internet Team

4.3

(231)

I’m so excited I could cry. I want to thank everybody for helping me through this process that was very new to me. I have been spreading the words and many people are now look into building so you will keep hearing from my referrals. You are all an amazing team.

- Margeline

Read Our Reviews

Mortgage Calculator

$
Down Payment
$
%
Interest Rate
%
Automatically Applied Rate:
Annual Property Tax
$
Monthly Mortgage Insurance
$
$
$
$
$

Do You Have to Work with an ARB?

Water & Sewer

Final Grade & Landscaping

Principal & Interest $
Property Tax $
Home Insurance $
Mortgage Insurance $
HOA Dues $
Estimated Monthly Payment $
Estimated Monthly Payment
$ /mo

Fall into Savings!

Fall into savings on your new home, built on your lot!

Now through November 15th, save up to $15,000 off your new home! 

  • Stanley $255,000.00 ($13,000 off)
    Avery $285,000.00 ($12,000 off)
    Grayson $283,000.00 ($14,000 off)
    Fenwick $289,000.00 ($15,000 off)
    Burton $245,000.00 ($13,000 off)

Offer available for a limited time on contracts written Oct. 10, 2025, through November 15, 2025, on select floorplans including Stanley, Avery, Grayson, Fenwick, and Burton. Incentives, terms, and availability are subject to change or withdrawal at any time without notice. Offer may not be combined with other promotions or discounts. Additional restrictions may apply. Please see a New Home Specialist for complete details. Features, amenities, floor plans, elevations, square footage, specifications, and prices vary per plan and community and are subject to changes or substitution without notice. The stated square footage is approximate and should not be used as a representation. Eastwood Homes and the Eastwood Homes logo are registered trademarks or trademarks of Eastwood Homes. All rights reserved.